

100% free and noncommittal
100% free and noncommittal
Aleksanterinkatu 46, Helsinki
Office space in a prestigious property in the heart of Helsinki.
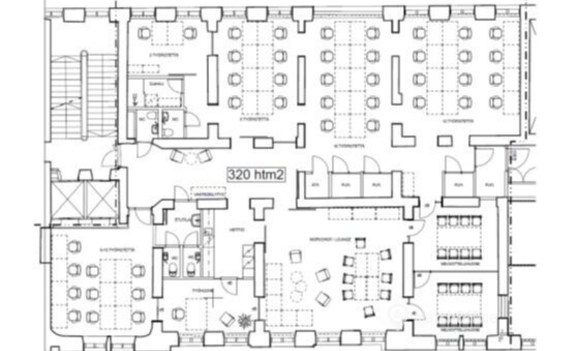
This impressive and bright 320m2 office space is located on the 3rd floor of the property. The office includes rooms, open space, as well as its own kitchen and toilet facilities. Available from December 1, 2024.
Aleksanterinkatu 46 is part of the Gaselli block, this property was completed in 1892 and designed by K.A. Wrede. It is located in an excellent location in the heart of Helsinki, on the pulse of Aleksanterinkatu. The property underwent a renovation respecting its history and architecture. All spaces now have mechanical ventilation and cooling. The modernized spaces were completed in the spring of 2016.
For more information, contact 044 723 4700 or info@bref.fi. Our service is free for space seekers.
204 m is the distance you have to cover to reach the nearest metro station. 135 m away from the office is where you can leave your car at a secure parking. The nearby supermarket is quite a commodity to have on your way back home.
Basic
This office covers the area of 320.0 sq. m., which is deemed an average-sized commercial space in the city. Your company's future home shall benefit from its location in Helsinki, known to be a favourable commercial neighbourhood. You can get more information about this office at Aleksanterinkatu 46, in Helsinki, 00100, directly from the landlord by filling in the form on our website. The landlord will gladly answer any questions you might still have left. Just fill in the form on our website and get the information requested.
Esplanadinpuisto that finds itself close to the office brings the subtle touch of natural equanimity amid the concrete jungle of the city. Katajanokan kanava running 702 m away from the building adds to the locality's overall attractiveness. Located 373 m away from the office, järvi will surely help your employees to recharge their batteries. Nested 469 m from the office, Valon tuoja - Talvisodan kansallinen muistomerkki caps the district's image of a presentable neighbourhood. With Ylioppilas teatteri being located nearby, this is one of the most presentable parts of the city .

Have you not found the desired location?
Create a Search Agent and be notified of new locations first.
Looks like page with the favourite leases is full. Please remove irrelevant leases from the page to add new ones.
Looks like page with the favourite leases is full. Please remove irrelevant leases from the page to add new ones.
Looks like page with the favourite leases is full. Please remove irrelevant leases from the page to add new ones.
Looks like page with the favourite leases is full. Please remove irrelevant leases from the page to add new ones.
Looks like page with the favourite leases is full. Please remove irrelevant leases from the page to add new ones.
Looks like page with the favourite leases is full. Please remove irrelevant leases from the page to add new ones.
Looks like page with the favourite leases is full. Please remove irrelevant leases from the page to add new ones.
Looks like page with the favourite leases is full. Please remove irrelevant leases from the page to add new ones.
Looks like page with the favourite leases is full. Please remove irrelevant leases from the page to add new ones.