




100% free and noncommittal
100% free and noncommittal
Esterinportti 2, Helsinki
Office space in a prime location in Pasila, Helsinki.
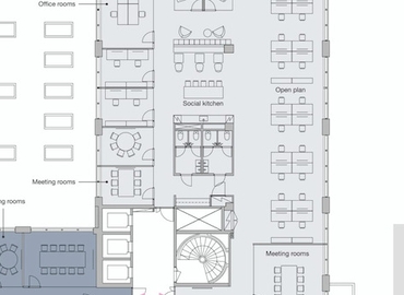
This bright 817m2 office space is located on the 5th floor of the building. The office offers stunning views towards the Tripla shopping center. It features open space, spacious team and meeting rooms, as well as smaller individual offices. The layout of the office can be customized according to the tenant's needs. There are two kitchens in the space, making it easily divisible into two sections of 436m2 and 381m2. The pictures are general images of the property's spaces.
Esterinportti 2 is an office building located in West Pasila, just a stone's throw away from the Tripla shopping center. The building also houses a high-quality lunch restaurant called Factory. Public transportation connections are excellent.
For more information, please contact us at 044 723 4700 or info@bref.fi. Our service is free for space seekers.
This office lies within a short walking distance from the bus station, only 2 minutes on foot. Aspiring for ecological sustainability, there is an EV charging station just 30 m from the office. The office's adjacent infrastructure features actually quite average within a radius of 500. The nearest fitness centre facility can be found in 260 m away from the office. A professional pharmacist’s consultation is in just 49 m away from the office.
Basic
This office covers the area of 386.3 sq. m., which is deemed an average-sized commercial space in the city. Setting up a company in this Helsinki, you will quite probably grasp the idea of what business-friendly infrastructure really means. You can get more information about this office at Esterinportti 2, in Helsinki, 00240, directly from the landlord by filling in the form on our website. The landlord will gladly answer any questions you might still have left. Just fill in the form on our website and get the information requested.
Located 3393 m from the city centre, the Esterinportti 2 office is quite a fit for a young and up-and-coming company . With the population of 655395, Helsinki is a reasonable destination for developing your business. Tripla Garden lies not far from the office - a perfect spot for discussing ideas and projects. järvi situated 360 m away crowns the process of forming a unique image of the district. Located not far from Fredikanterassi, the office is a part of the city's main commercial district.

Have you not found the desired location?
Create a Search Agent and be notified of new locations first.
Looks like page with the favourite leases is full. Please remove irrelevant leases from the page to add new ones.
Looks like page with the favourite leases is full. Please remove irrelevant leases from the page to add new ones.
Looks like page with the favourite leases is full. Please remove irrelevant leases from the page to add new ones.
Looks like page with the favourite leases is full. Please remove irrelevant leases from the page to add new ones.
Looks like page with the favourite leases is full. Please remove irrelevant leases from the page to add new ones.
Looks like page with the favourite leases is full. Please remove irrelevant leases from the page to add new ones.
Looks like page with the favourite leases is full. Please remove irrelevant leases from the page to add new ones.
Looks like page with the favourite leases is full. Please remove irrelevant leases from the page to add new ones.
Looks like page with the favourite leases is full. Please remove irrelevant leases from the page to add new ones.
Looks like page with the favourite leases is full. Please remove irrelevant leases from the page to add new ones.
Looks like page with the favourite leases is full. Please remove irrelevant leases from the page to add new ones.
Looks like page with the favourite leases is full. Please remove irrelevant leases from the page to add new ones.
Looks like page with the favourite leases is full. Please remove irrelevant leases from the page to add new ones.
Looks like page with the favourite leases is full. Please remove irrelevant leases from the page to add new ones.
Looks like page with the favourite leases is full. Please remove irrelevant leases from the page to add new ones.
Looks like page with the favourite leases is full. Please remove irrelevant leases from the page to add new ones.
Looks like page with the favourite leases is full. Please remove irrelevant leases from the page to add new ones.
Looks like page with the favourite leases is full. Please remove irrelevant leases from the page to add new ones.
Looks like page with the favourite leases is full. Please remove irrelevant leases from the page to add new ones.
Looks like page with the favourite leases is full. Please remove irrelevant leases from the page to add new ones.
Looks like page with the favourite leases is full. Please remove irrelevant leases from the page to add new ones.
Looks like page with the favourite leases is full. Please remove irrelevant leases from the page to add new ones.
Looks like page with the favourite leases is full. Please remove irrelevant leases from the page to add new ones.
Looks like page with the favourite leases is full. Please remove irrelevant leases from the page to add new ones.
Looks like page with the favourite leases is full. Please remove irrelevant leases from the page to add new ones.
Looks like page with the favourite leases is full. Please remove irrelevant leases from the page to add new ones.