




100% free and noncommittal
100% free and noncommittal
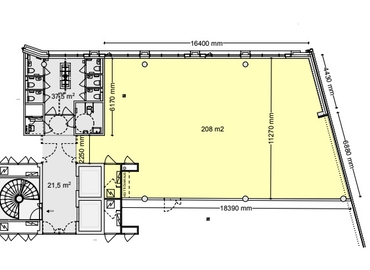
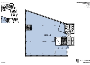
Hermannin rantatie 8, Helsinki
Modern office space in Rantatie Business Park, Helsinki Kalasatama.
This 168m2 office space is located on the ground floor of the Loikka building. On the 4th floor. The office is open plan. There is a restaurant and meeting rooms nearby. Available from 1.10.2024. The pictures are general views of the property.
Rantatie Business Park is a modern and stylish complex in the developing area of Kalasatama. The office spaces can be easily customized according to the tenant's needs. The property offers a wide range of services, such as reception service, cleaning, security, meeting rooms, renovation and interior design services, lunch restaurant, café, as well as event and catering services.
The Loikka building was completed in September 2019. Its floor sizes range from 980 m2 to 1500 m2. The property was built with high-quality materials and impressive details. Environmental friendliness has been taken into account in its design. The top floor features meeting rooms, a stunning rooftop terrace, and a green roof.
For more information, please contact 044 723 4700 or info@bref.fi. Our service is free for space seekers.
It takes a 4 minutes walk to reach the office from the nearest bus station. The nearby supermarket is quite a commodity to have on your way back home. The nearest fitness centre facility can be found in 118 m away from the office. In case you might need to have your vehicle sparkling clean, the nearest car wash is only 6 minutes away.
Basic
Helsinki, where the office is situated, is well-known for its business-friendly infrastructure. This office covers the area of 168.0 sq. m., which is deemed an average-sized commercial space in the city. This is a proper option for accommodating both small and medium-sized teams of up to 7 members. You can get more information about this office at Hermannin rantatie 8, in Helsinki, 00580, directly from the landlord by filling in the form on our website. Fill in the form to ask any questions about the office directly of the property owner.
Take care of your team's mental health by reducing the time they spend commuting as the office is located nor far from Hermannin rantatie. puisto that finds itself close to the office brings the subtle touch of natural equanimity amid the concrete jungle of the city. neliömetri which is a part of the city's pivotal business hub is located not far from the office. With Verkkosaarenkanava running in just 236 m, this office is undoubtedly an exceptional piece of commercial real estate. With Musiikkiteatteri Kapsäkki being located nearby, this is one of the most presentable parts of the city .

Have you not found the desired location?
Create a Search Agent and be notified of new locations first.
Looks like page with the favourite leases is full. Please remove irrelevant leases from the page to add new ones.
Looks like page with the favourite leases is full. Please remove irrelevant leases from the page to add new ones.
Looks like page with the favourite leases is full. Please remove irrelevant leases from the page to add new ones.
Looks like page with the favourite leases is full. Please remove irrelevant leases from the page to add new ones.
Looks like page with the favourite leases is full. Please remove irrelevant leases from the page to add new ones.
Looks like page with the favourite leases is full. Please remove irrelevant leases from the page to add new ones.
Looks like page with the favourite leases is full. Please remove irrelevant leases from the page to add new ones.
Looks like page with the favourite leases is full. Please remove irrelevant leases from the page to add new ones.
Looks like page with the favourite leases is full. Please remove irrelevant leases from the page to add new ones.
Looks like page with the favourite leases is full. Please remove irrelevant leases from the page to add new ones.
Looks like page with the favourite leases is full. Please remove irrelevant leases from the page to add new ones.
Looks like page with the favourite leases is full. Please remove irrelevant leases from the page to add new ones.