




100% free and noncommittal
100% free and noncommittal
Ruosilankuja 3, Helsinki
Clean office space for rent in Konala.
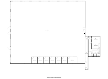
This 540m2 office is located on the 2nd floor of the building and has its own glazed staircase directly in front of the building. The space also includes its own sauna area, social facilities, and a goods elevator.
Ruusilankuja 3 is an office property in Konala, Helsinki. The property has good transportation connections to the city center and Helsinki-Vantaa Airport. Ristikko shopping center is less than 1km away.
The premises of the property are exempt from value-added tax.
For more information, please contact 044 723 4700 or info@bref.fi. Our service is free for space seekers.
It takes a 7 minutes walk to reach the office from the nearest bus station. The nearest fitness centre facility can be found in 89 m away from the office. A fitness centre situated just 2 minutes away from the office is a duly-equipped athletic facility. Bicycle parking is a part of the adjacent premise's infrastructure. A professional pharmacist’s consultation is in just 685 m away from the office. Delicious snacks and beverages are served at the pub that lies 13 minutes away the office. In case you might need to have your vehicle sparkling clean, the nearest car wash is only 7 minutes away.
With an active usage area of 540.0 to 540.0 sq. m., this office is more spacious than the majority of options in Helsinki. The office space occupies 540.0 sq. m, which is larger than the majority of workspaces in Helsinki. With an ability to accommodate 22 employees, this large office represents a solid variant for sheltering your business in Helsinki. Helsinki, where the office is situated, is well-known for its business-friendly infrastructure. Suitable for big teams of up to 22 employees, this office would be a decent choice for large-scale businesses. Occupying 540.0 sq. m., this office is bigger than the majority of similar premises in the city. The total area of this lease is 540.0 sq. m, which is more than the city's average. This office space is considered to be a large one, as it can accommodate up to 22 employees. Still have questions regarding this office rental offer? Fill in the form and ask the landlord directly. Fill in the form to ask any questions about the office directly of the property owner.
Standing in proximity to Soittajantori, the office finds itself on the intersection of some of the most important routes in the city. With joki running in just 40 m, this office is undoubtedly an exceptional piece of commercial real estate. Standing not far from Konalan puisto, the office spots itself in a perfectly calm and an inspiring location. Vihdintie stretches right beside the building, rendering your office accessible to anyone willing to visit. Soittajantori which is a part of the city's pivotal business hub is located not far from the office. Konalan puisto that finds itself close to the office brings the subtle touch of natural equanimity amid the concrete jungle of the city.

Have you not found the desired location?
Create a Search Agent and be notified of new locations first.
Looks like page with the favourite leases is full. Please remove irrelevant leases from the page to add new ones.
Looks like page with the favourite leases is full. Please remove irrelevant leases from the page to add new ones.
Looks like page with the favourite leases is full. Please remove irrelevant leases from the page to add new ones.
Looks like page with the favourite leases is full. Please remove irrelevant leases from the page to add new ones.
Looks like page with the favourite leases is full. Please remove irrelevant leases from the page to add new ones.
Looks like page with the favourite leases is full. Please remove irrelevant leases from the page to add new ones.
Looks like page with the favourite leases is full. Please remove irrelevant leases from the page to add new ones.
Looks like page with the favourite leases is full. Please remove irrelevant leases from the page to add new ones.
Looks like page with the favourite leases is full. Please remove irrelevant leases from the page to add new ones.
Looks like page with the favourite leases is full. Please remove irrelevant leases from the page to add new ones.
Looks like page with the favourite leases is full. Please remove irrelevant leases from the page to add new ones.
Looks like page with the favourite leases is full. Please remove irrelevant leases from the page to add new ones.
Looks like page with the favourite leases is full. Please remove irrelevant leases from the page to add new ones.