

Pohjoisesplanadi 37, Helsinki
A centrally located space in the heart of Helsinki suitable for a restaurant or exhibition venue.
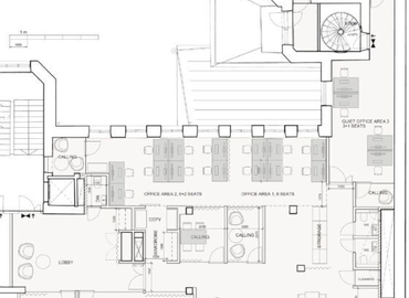
This 480m2 space is located in the basement of the building. It is suitable, for example, for a restaurant or exhibition venue. The space will be completed in early 2025.
Pohjoisesplanadi 37 is a skillfully renovated prestigious property that offers space in seven floors. The property has also been modernized in terms of building services to meet today's requirements. The property and its surrounding area are known as the center of business, administration, and culture. The spaces can be customized according to needs, while respecting the age of the building.
For more information, please contact us at 044 723 4700 or info@bref.fi. Our service is free for space seekers.
Shopping facilities are aplenty here, the supermarket is only 249 m away. The nearest parking, situated 187 m away from the store is quite a benefit of this location. At the proximity of 451 m from the shop there is a train stop. It won't take more than 2 minutes to reach the pharmacy from this store. The fitness centre is adjacent to the shop. It takes 2 minutes to get there.
Basic
Those eager to buy are always on the move. Standing close to Pohjoisesplanadi, this store's success is only a matter of time. Located near Esplanadinpuisto, this shop is nothing but a splendid retail location situated where there is always a lot of potential customers. The shop's immediate vicinity to Ylioppilasaukio is quite a factor to take into consideration. Katajanokan kanava - just 748 m away from the shop is the local shoppers' place of pilgrimage. The district around järvi - 595 m from the shop - is one of the citizens' favourite recreational locations. While Pohjoisesplanadi runs by the shop, thousands of potential customers pass it by in their cars. Ylioppilasaukio is not far from the shop and everyone knows that shops and squares are a union made in a commercial heaven. The shop stands in 748 m from Katajanokan kanava with a lot of prospective customers strolling by daily.

Have you not found the desired location?
Create a Search Agent and be notified of new locations first.
Looks like page with the favourite leases is full. Please remove irrelevant leases from the page to add new ones.
Looks like page with the favourite leases is full. Please remove irrelevant leases from the page to add new ones.
Looks like page with the favourite leases is full. Please remove irrelevant leases from the page to add new ones.
Looks like page with the favourite leases is full. Please remove irrelevant leases from the page to add new ones.
Looks like page with the favourite leases is full. Please remove irrelevant leases from the page to add new ones.
Looks like page with the favourite leases is full. Please remove irrelevant leases from the page to add new ones.
Looks like page with the favourite leases is full. Please remove irrelevant leases from the page to add new ones.
Looks like page with the favourite leases is full. Please remove irrelevant leases from the page to add new ones.
Looks like page with the favourite leases is full. Please remove irrelevant leases from the page to add new ones.
Looks like page with the favourite leases is full. Please remove irrelevant leases from the page to add new ones.
Looks like page with the favourite leases is full. Please remove irrelevant leases from the page to add new ones.
Looks like page with the favourite leases is full. Please remove irrelevant leases from the page to add new ones.
Looks like page with the favourite leases is full. Please remove irrelevant leases from the page to add new ones.
Looks like page with the favourite leases is full. Please remove irrelevant leases from the page to add new ones.
Looks like page with the favourite leases is full. Please remove irrelevant leases from the page to add new ones.
Looks like page with the favourite leases is full. Please remove irrelevant leases from the page to add new ones.
Looks like page with the favourite leases is full. Please remove irrelevant leases from the page to add new ones.
Looks like page with the favourite leases is full. Please remove irrelevant leases from the page to add new ones.
Looks like page with the favourite leases is full. Please remove irrelevant leases from the page to add new ones.
Looks like page with the favourite leases is full. Please remove irrelevant leases from the page to add new ones.
Looks like page with the favourite leases is full. Please remove irrelevant leases from the page to add new ones.