

Garden Road 9, Vantaa
Street level commercial space in the basement of a residential building in Koivuhaka, Vantaa.
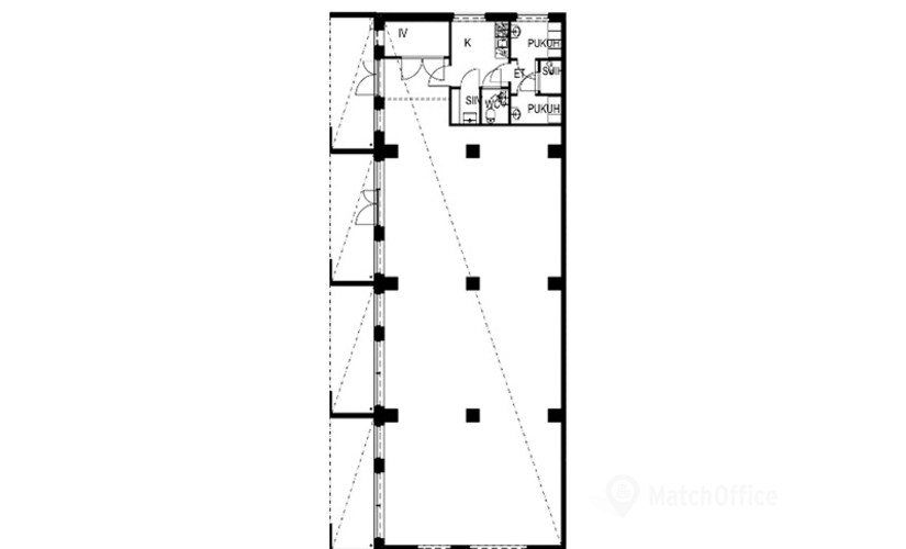
The space in question is 191m2 in size and is suitable for a store, office, or café. It includes its own kitchen, changing room, and toilet facilities. The commercial space has designated parking spaces.
The premise is not suitable for a restaurant or a barber shop.
Apartment Corporation Vantaan Puutarhatie 9 is located in Koivuhaka, Vantaa, right next to Tikkurila. The property was completed in 2017.
For more information, please contact us at 044 723 4700 or info@bref.fi. Our service is free for space seekers.
Have you not found the desired location?
Create a Search Agent and be notified of new locations first.
Looks like page with the favourite leases is full. Please remove irrelevant leases from the page to add new ones.
Looks like page with the favourite leases is full. Please remove irrelevant leases from the page to add new ones.
Looks like page with the favourite leases is full. Please remove irrelevant leases from the page to add new ones.