




100% free and noncommittal
100% free and noncommittal
Tikkurilantie 140 B, Vantaa
High-quality industrial space in Vantaa, near the airport.
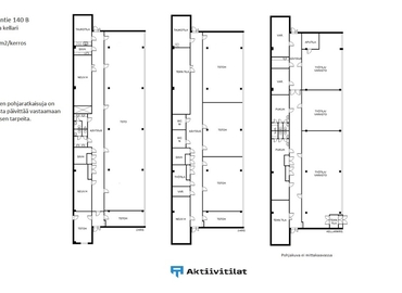
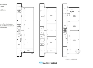
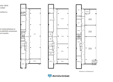
This 5799 m² versatile office space complex consists of approximately 4000 m² of industrial space, 420 m² of dispatch area, two office floors of around 420 m² each, and a basement floor of 420 m² for social/storage facilities. The hall has a height of 7 meters and includes large loading docks and 16 lifting doors. The space can be divided into smaller sections, starting from 2000 m². Available from January 2026.
Tikkurilantie 140 B is located in an excellent location near Helsinki-Vantaa Airport, right next to Ring III. The property has plenty of parking space.
For more information, please contact 044 723 4700 or info@bref.fi. Our service is free for space seekers.
The warehouse boasts proximity to the train station, which lies within a 16 minutes walk. The supermarket that lies in 948 m away from the warehouse is a popular place to do shopping here. The area around the warehouse is served by the post-office, located 398 m away.
While being easily accessible from any part of the town, Vantaa will foster your logistical opportunities to a great extent. As a potential tenant, you can get all the relevant information about this warehouse on Tikkurilantie 140 B, in Vantaa, 01530, by filling in the form. The online form, which you can fill in at a convenient time, helps you to stay in a direct contact with the landlord.
järvi located 229 m away from the warehouse helps the locals soothe the hectic business rhythm of the district. Renting a warehouse near Tikkurilantie will help your company grow due to enhanced supply chain velocity. Krakanoja located in 88 m from the warehouse renders it as an efficient and yet picturesque storage facility. The warehouse stands next to Osumapuisto, thus difusing the local industrial infrastructure with the beauty of greenish crowns.

Have you not found the desired location?
Create a Search Agent and be notified of new locations first.
Looks like page with the favourite leases is full. Please remove irrelevant leases from the page to add new ones.
Looks like page with the favourite leases is full. Please remove irrelevant leases from the page to add new ones.
Looks like page with the favourite leases is full. Please remove irrelevant leases from the page to add new ones.
Looks like page with the favourite leases is full. Please remove irrelevant leases from the page to add new ones.
Looks like page with the favourite leases is full. Please remove irrelevant leases from the page to add new ones.
Looks like page with the favourite leases is full. Please remove irrelevant leases from the page to add new ones.
Looks like page with the favourite leases is full. Please remove irrelevant leases from the page to add new ones.
Looks like page with the favourite leases is full. Please remove irrelevant leases from the page to add new ones.
Looks like page with the favourite leases is full. Please remove irrelevant leases from the page to add new ones.
Looks like page with the favourite leases is full. Please remove irrelevant leases from the page to add new ones.
Looks like page with the favourite leases is full. Please remove irrelevant leases from the page to add new ones.