


100% free and noncommittal
100% free and noncommittal
Sinikalliontie 12, Espoo
Office space in Mankkaa, Espoo.
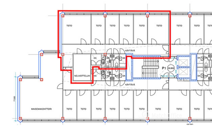
This office space, measuring 143.5 m2, is located on the 2nd floor of the building. The space is partitioned, but can be modified according to the needs of the company. The office has its own toilet facilities and a small kitchen. The building has mechanical ventilation. The pictures are general views of the premises.
Sinikalliontie 12 is located in Mankkaa, Espoo, in the Sinikallio business area. The property has a good location near Turunväylä, Kehä II, and Kehä III. The office building has a reception, representative and sauna facilities, as well as business center services. There is ample parking space in the property's yard.
For more information, please contact us at 044 723 4700 or info@bref.fi. Our service is free for space seekers.
This office lies within a short walking distance from the bus station, only 2 minutes on foot. The nearby supermarket is quite a commodity to have on your way back home. A fitness centre situated just 5 minutes away from the office is a duly-equipped athletic facility.
Basic
Espoo, where the office is situated, is well-known for its business-friendly infrastructure. This office covers the area of 143.5 sq. m., which is deemed an average-sized commercial space in the city. You can get more information about this office at Sinikalliontie 12, in Espoo, 02630, directly from the landlord by filling in the form on our website. Fill in the form to ask any questions about the office directly of the property owner.
Located only 715 m from the city centre, the office at Sinikalliontie 12 is a comfortable destination for your employees. Turunväylä runs near the office, which is quite an advantage with today's business heavily dependent on people's mobility. Standing not far from Klovinpuisto, the office spots itself in a perfectly calm and an inspiring location. The office is located in a picturesque site, 225 m from joki.

Have you not found the desired location?
Create a Search Agent and be notified of new locations first.
Looks like page with the favourite leases is full. Please remove irrelevant leases from the page to add new ones.
Looks like page with the favourite leases is full. Please remove irrelevant leases from the page to add new ones.
Looks like page with the favourite leases is full. Please remove irrelevant leases from the page to add new ones.
Looks like page with the favourite leases is full. Please remove irrelevant leases from the page to add new ones.
Looks like page with the favourite leases is full. Please remove irrelevant leases from the page to add new ones.
Looks like page with the favourite leases is full. Please remove irrelevant leases from the page to add new ones.
Looks like page with the favourite leases is full. Please remove irrelevant leases from the page to add new ones.
Looks like page with the favourite leases is full. Please remove irrelevant leases from the page to add new ones.
Looks like page with the favourite leases is full. Please remove irrelevant leases from the page to add new ones.
Looks like page with the favourite leases is full. Please remove irrelevant leases from the page to add new ones.
Looks like page with the favourite leases is full. Please remove irrelevant leases from the page to add new ones.
Looks like page with the favourite leases is full. Please remove irrelevant leases from the page to add new ones.
Looks like page with the favourite leases is full. Please remove irrelevant leases from the page to add new ones.
Looks like page with the favourite leases is full. Please remove irrelevant leases from the page to add new ones.
Looks like page with the favourite leases is full. Please remove irrelevant leases from the page to add new ones.
Looks like page with the favourite leases is full. Please remove irrelevant leases from the page to add new ones.