




100% free and noncommittal
100% free and noncommittal
Itälahdenkatu 23, Helsinki
Office space in Lauttasaari, Helsinki.
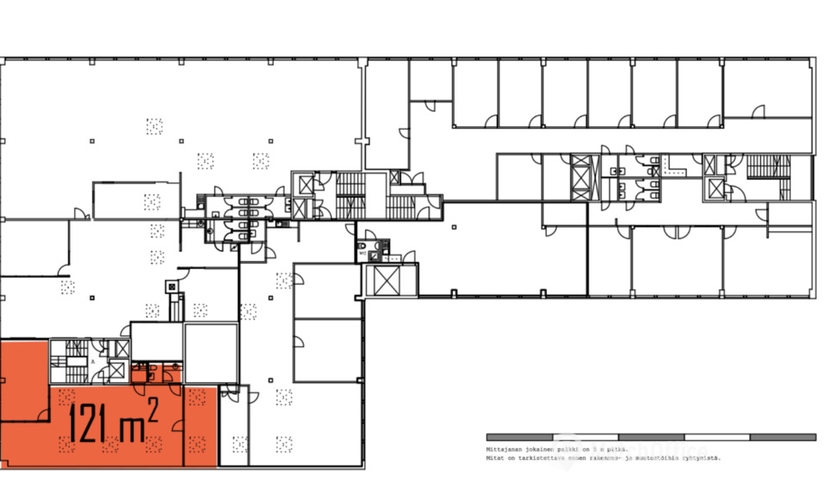
This spacious 121 m² office/showroom space is located on the 5th floor of the building. In addition to the open space, there are two rooms that can be used as offices or storage. The space also includes its own kitchen and toilet facilities. Skylights bring natural light into the space.
Itälahdenkatu 23 is an office building completed in the 1970s, with a total floor area of 7000 m². The property is conveniently located near transportation links, about a kilometer from Lauttasaari metro station. The building has its own parking spaces and a loading dock. There are several lunch restaurants in the area. The building has five floors, all accessible by passenger elevators and a freight elevator from the basement to the fourth floor.
For more information, please contact 044 723 4700 or info@bref.fi. Our service is free for space seekers.
It takes a 2 minutes walk to reach the office from the nearest bus station. A 2 minutes walk from the office will take you to a cafe serving a varied menu. The nearby supermarket is quite a commodity to have on your way back home. The nearest fitness centre facility can be found in 211 m away from the office. Bicycle parking is a part of the adjacent premise's infrastructure.
Basic
Setting up a company in this Helsinki, you will quite probably grasp the idea of what business-friendly infrastructure really means. This office covers the area of 121.0 sq. m., which is deemed an average-sized commercial space in the city. You can get more information about this office at Itälahdenkatu 23, in Helsinki, 00210, directly from the landlord by filling in the form on our website. Fill in the form to learn more about the office. You'll get all the information you might need directly from the landlord.
Merikylpylänpuisto that finds itself close to the office brings the subtle touch of natural equanimity amid the concrete jungle of the city. The office is located in a picturesque site, 277 m from joki.

Have you not found the desired location?
Create a Search Agent and be notified of new locations first.
Looks like page with the favourite leases is full. Please remove irrelevant leases from the page to add new ones.
Looks like page with the favourite leases is full. Please remove irrelevant leases from the page to add new ones.
Looks like page with the favourite leases is full. Please remove irrelevant leases from the page to add new ones.
Looks like page with the favourite leases is full. Please remove irrelevant leases from the page to add new ones.
Looks like page with the favourite leases is full. Please remove irrelevant leases from the page to add new ones.
Looks like page with the favourite leases is full. Please remove irrelevant leases from the page to add new ones.
Looks like page with the favourite leases is full. Please remove irrelevant leases from the page to add new ones.
Looks like page with the favourite leases is full. Please remove irrelevant leases from the page to add new ones.
Looks like page with the favourite leases is full. Please remove irrelevant leases from the page to add new ones.
Looks like page with the favourite leases is full. Please remove irrelevant leases from the page to add new ones.
Looks like page with the favourite leases is full. Please remove irrelevant leases from the page to add new ones.
Looks like page with the favourite leases is full. Please remove irrelevant leases from the page to add new ones.
Looks like page with the favourite leases is full. Please remove irrelevant leases from the page to add new ones.
Looks like page with the favourite leases is full. Please remove irrelevant leases from the page to add new ones.